为了更好地普及火灾疏散逃生知识,增强师生自我防护意识,提高自防自救能力,掌握逃生技巧。2014年“119”消防宣传月系列活动--“火灾疏散逃生演练”活动计划在阎良校区学生公寓举办。为了组织好这次演练活动,特制定本方案。
一、演练目的和原则
(一)目的
通过演练,进一步在今年会师生中普及火灾疏散逃生知识,掌握必要的逃生技能,提高师生自防自救能力。通过演练,进一步查找应急疏散预案中存在的问题,进而完善应急预案,提高应急预案的实用性和可操作性。
(二)原则
着眼实战、讲求实效、精心组织、确保安全。提高应急指挥人员的指挥协调能力,锻炼应急队伍的实战训练能力,评估演练效果和应急组织工作,总结经验,整改问题。精心策划演练内容,科学设计演练方案,周密组织演练活动,系统制订安全措施,确保演练参与人员的安全。
二、演练的领导和组织机构
成立演练指挥部,指挥部组成人员名单如下:
总 指 挥:张同怀
副总指挥:李俊哲
成 员:孙巨峰、刘建峰、陈冬梅、魏浩、申良、王奇利、李永刚、侯睿、李庆、李波
三、指挥部下设各工作小组:
1、现场控制组:
组 长:李 波
职 责:在演练实施过程中,在总指挥、副总指挥的直接领导下,负责向演练人员传送各类指令消息,引导应急演练按计划进行。
2、宣传动员组:
组 长:孙巨峰
副组长:申 良
成 员:各学院党总支书记
职 责:负责对参与演练学生前期的宣传、教育(详见附件1)和动员等相关工作,同时落实疏散演练中各楼层负责人员的安排事宜。团委负责现场音响设备调试及相关维护人员的组织安排。
3、安全警戒组:
组 长:唐金哲
成 员:巢 珉、校卫队员5人,士官班学生20人
职 责:负责演练期间的现场警戒和治安保卫工作。
4、应急疏散组:
组 长:孙护军
副组长:惠军锋、龙丹
成 员:薛涛、王宝宁、各学院学生管理科科长、辅导员20人,学生320人(详见附件1)。
职 责:配合辅导员疏散学生。
5、医疗救护组:
组 长:马 骥
成 员:医生2名、护士4名
职 责:负责演练疏散时受伤人员的包扎、救治以及伤员的运送。疏散开始时,医疗救护组成员迅速到达灾情最严重的5432宿舍,救护一名“伤员”;需要准备担架1副、纱布、吸氧道具。
6、烟雾效果组:
组 长:王 灏
成 员:校卫队员2名
职 责:学生公寓楼内烟雾释放。
负责在公寓楼内的烟雾释放,主要烟雾在5#学生公寓三层西侧楼梯窗口、2#学生公寓西侧楼梯窗口各放一个烟弹。
7、抢险灭火组
组 长:樊朝晖
副组长:段海波
组 员:校卫队员5名、义务消防员20名
职 责:负责疏散演练时救火、灭火、消防栓使用演示等工作。
8、宣传报道组:
组 长:马进军
成 员:现代教育技术中心、学生记者团记者
职 责:摄像、拍照、新闻报道。
四、演练的安排
(一)演练时间:2014年11月25号中午13:10—13:40
(二)演练地点:阎良校区2#、5#学生公寓
(三)参演人数:阎良校区各院系学生约4500余人,辅导员及学生干部100人,义务消防员40人、保卫处干部及队员25人,共计参演师生共计4700余人。
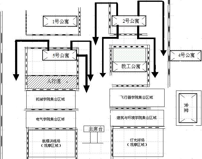
(四)现场场地的划定
主席台在灯光球场与航模训练场中间路口位置、学生集合点在5#学生公寓和教工公寓以南路面及人行道(详见附件3)。
五、演练程序
(一)演练准备(11月21日)
12:55,保卫处在学生公寓楼前设立警戒线,清理现场,禁止闲杂人员流动。
13:00,参加火灾疏散逃生演练的4500余名学生和疏散组、烟雾组工作人员按要求进入指定位置待命。
(二)演练活动
13:10,各项工作准备就绪后,由现场控制组组长向总指挥报告:“报告总指挥,jinnianhui今年会2014年火灾疏散逃生演练活动准备工作一切就绪,请指示。”总指挥下令:“演练开始。”
开始演练:
13:12,现场控制组组长向烟雾组组长王灏发出命令:释放烟雾。王灏在指定窗台释放1个烟弹,半分钟后在另一窗台施放1个烟弹。
13:13,现场控制组组长向楼内的疏散组组长孙护军发出疏散命令,疏散组及成员向楼内发出火灾报警。听到报警后,公寓管理员迅速打开安全疏散通道,疏散组全体成员组织学生有序疏散逃生。
13:14,现场控制组组长向抢险灭火组组长樊朝晖发出救火命令,灭火组成员在报警人员(公寓管理员)的接引下,义务消防队员约20人,迅速赶到着火点。
13:15,现场控制组组长向安全警戒组组长唐金哲发出警戒命令,警戒组成员封锁疏散路段的出入口,禁止人员及车辆通行,保障疏散路线通畅,同时在疏散后的每栋楼口执勤,保障公寓内财产安全。
13:16,现场控制组组长向医疗救护组组长马骥发出抢救受伤人员命令,救护组成员跑进5号公寓楼内救护“伤员”。
13:17,现场控制组组长向抢险灭火组副组长段海波发出灭火命令,灭火组成员迅速连接消防水带实施灭火。
13:18参演学生安全疏散逃生。
13:20各学院以班级为单位集结,辅导员清点疏散师生人数,并由各各学院学生管理科科长向现场控制组组长李波汇报疏散情况。
13:25由现场控制组组长向总指挥报告:“报告总指挥,jinnianhui今年会2014年火灾疏散逃生演练活动圆满完成,请指示。”
13:30由总指挥张同怀对本次疏散演练活动进行总结点评并下令:“演练结束。”
附件1:火灾疏散逃生演练注意事项及要求
附件2:各楼层区域人员安排及要求
附件3:活动现场平面示意图
2014-11-18
附件1--火灾疏散逃生演练注意事项及要求
一、组织保障措施:
1、各院系提前对学生进行演练前的宣传、教育、动员、告知,确保全员参与,并于周三前上报参与的学生人数。
2、各楼层负责人周四前召集所在楼层宿舍舍长,告知逃生疏散线路,安排疏散工作的注意事项,在舍长中选定各通道学生疏散负责人(每个通道2名学生)并将信息(院系、班级、姓名、宿舍、电话)报保卫处。
3、各楼层负责人在活动开始前15分钟(12点55分)到公寓门前集合,再到各楼层通道口就位进行疏散演练工作。
4、各楼层负责人通知所负责楼层各通道学生疏散负责人本周四晚上7:00在阶二教室开会。
5、2#、5#学生公寓参加补考、办理请假的学生要求中午12:50前离开公寓。
二、学生在疏散过程中的注意事项:
1、逃生疏散线路。学生在楼层负责人的指挥下从就近的楼梯通道、疏散出口撤出,快速向指定区域集合。
2、在疏散中,手里拿好湿毛巾并捂住口鼻,以免吸入烟雾,尽量将身体贴近地面匍匐或弯腰靠墙前进,直至疏散到楼外安全地带。
3、在撤离过程中,一定要按照指定的路线,不能随意改变。
4、学生之间不推不挤,相互帮助,发扬先人后己的风格。
5、不能从扶手下滑,不能一步跨几个台阶。
6、快速离开楼梯口和出口,不能把安全疏散出口堵住。
7、事先要妥善保管好自己的贵重物品和财物。
8、疏散要快速及时,不得嬉戏打闹、边走边吃零食等行为。
9、到达集合点后,各班清点人数并向本学院负责人上报应到和实到人数,保障全员疏散。
三、疏散中楼层负责人应注意的事项:
1、各楼层负责人在各楼层进行指挥、引导和提醒工作,明确告知学生疏散路线,提前查看疏散通道是否畅通,防止人员拥挤,造成踩踏事故,确保学生安全。
2、人员疏散完毕后,各层负责人检查各宿舍人员是否全部疏散,最后撤离现场,到院系指定区域集合。
四、各安全出口的保障:
1、公寓管理员事先将各个楼梯口的门打开,保障疏散通道畅通。
2、各单位、学院安排专人在宿舍楼梯口处将学生引导到指定的安全区域。避免拥堵在宿舍一楼空地处造成疏散通道的堵塞。
附件2--各楼层区域人员安排及要求
2号公寓人数,男344 女1742
5号公寓人数,男2405
(一)2号、5号公寓疏散区域及人员安排
2号公寓疏散区域及人员安排
负责人 |
疏散区域 |
疏散通道 |
宿舍号 |
孙茉莉 |
一层北 |
西门出口 |
2101~2117;2102~2230 |
西北角出口 |
2114~2230;2119~2233 |
郭月涵 |
一层南 |
西门出口 |
2149~2263;2156~2268 |
西南角出口 |
2132~2154;2135~2147 |
赵慧凯 |
二层北 |
西门出口 |
2201~2217;2202~2212 |
西北角出口 |
2214~2230;2219~2233 |
史迪 |
二层南 |
西门出口 |
2249~2261;2258~2270 |
西南角出口 |
2232~2254;2237~2247 |
殷娇 |
三层北 |
西门出口 |
2301~2317;2302~2312 |
西北角出口 |
2319~2333;2314~2326 |
马晨 |
三层南 |
东南角出口 |
2347~2359;2346~2360 |
西南角出口 |
2328~2344;2335~2345 |
肖静 |
四层北(女) |
西门出口 |
北侧全部女生宿舍 |
西北角出口 |
裴蕾 |
四层南 |
东南角出口 |
南侧全部女生宿舍 |
西南角出口 |
阎静 |
五层南 |
东南角出口 |
本楼层南侧全部女生宿舍 |
西南角出口 |
曹栋 |
四层北(男) |
东北角出口 |
本楼层北侧全部男生宿舍 |
高韩峰 |
五层北(男) |
东北角出口 |
本楼层北侧全部男生宿舍 |
5号公寓疏散区域及人员安排
负责人 |
疏散区域 |
疏散通道 |
宿舍号 |
魏新宇 |
一层北 |
东门出口 |
5102~5114;5103~5119 |
东北角出口 |
5116~5138;5121~5133 |
许强 |
一层南 |
东门出口 |
5142~5172;5135~5157 |
刘建强 |
二层北 |
东北角出口 |
5201~5215;5202~5210 |
西北角出口 |
5212~5232;5217~5233 |
冯伦伦 |
二层南 |
东门出口 |
5258~5272;5247~5257 |
西北角出口 |
5234~5256;5235~5245 |
任志刚 |
三层北 |
东北角出口 |
5301~5317;5302~5312 |
西北角出口 |
5314~5326;5319~5333 |
李亚胜 |
三层南 |
东门出口 |
本楼层南侧全部宿舍 |
贾昭 |
四层北 |
东北角出口 |
5401~5417;5402~5412 |
西北角出口 |
5414~5426;5419~5433 |
刘书林 |
四层南 |
东门出口 |
本楼层南侧全部宿舍 |
吴伟刚 |
五层北 |
东北角出口 |
5501~5517;5502~5512 |
西北角出口 |
5514~5524;5519~5533 |
葛昊 |
五层南 |
东门出口 |
本楼层南侧全部宿舍 |
(二)各楼层负责人职责:负责保障公寓各安全疏散通道的畅通,组织参演人员做好疏散工作。每个疏散通道口2名楼层学生安全员,配合组织学生有序疏散,疏散时要求学生采取低姿并用毛巾捂住口鼻。学生撤离后在指定区域集合,各楼层辅导员负责清点人数汇总后上报。
附件3-- 活动现场平面示意图
